Cheap Property for Sale
2,167 properties below €20,000 in 69 countries
 Back to Search Results  Back to Search Results

COMMERCIAL REAL ESTATE FOR RENT IN BUDAPEST

  
  
  

€ 3,480

£3,050.92
$4,082.39

COMMERCIAL REAL ESTATE FOR RENT IN BUDAPEST

Boutique real estate for rent in the downtown of Budapest

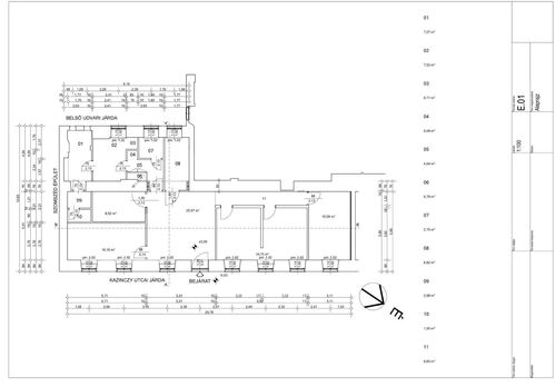
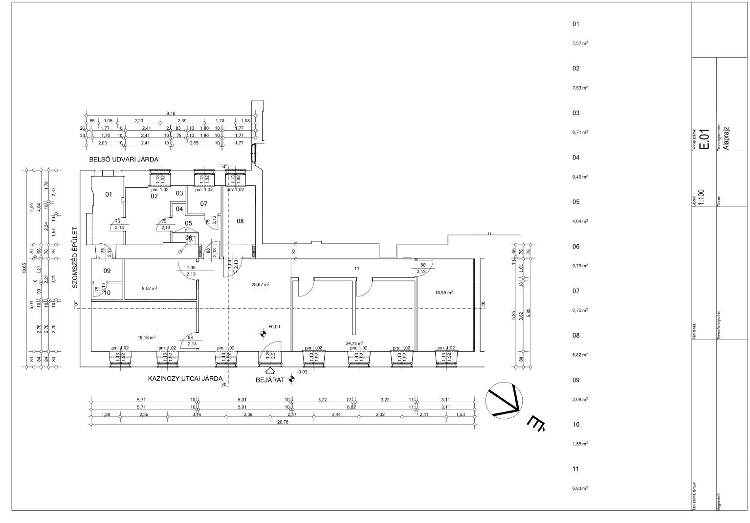
Located in the downtown area of Budapest, this prestigious commercial real estate property spans 133 m² and offers a highly sought-after street entrance on a busy thoroughfare. The interior is both exciting and functional, includes 3 separate treatment rooms, featuring a spacious and inviting client bathroom, private spaces, and a dedicated office area.

This rare and unique commercial space is currently operating as a medical office but is flexible for conversion to suit other uses, such as a massage salon, tattoo studio, or aesthetic salon. Additional photos are available upon request.

The street environment is particularly noteworthy due to the hotel boom in the Paulay Ede, Király, and Kazinczy streets area, with the first Marriott International Moxy Hotel in Hungary being constructed in the vicinity of the property:
https://www.property-forum.eu/news/marriott-to-open-first-moxy-hotel-in-budapest/15530

Commercial

Property ID: 60069

For:
Rent
Condition:
New

Floor area:
133 m²

Hungary

Pest

Address:
21 Király Street, VII. Budapest, 1075 Hungary
VII. District
Close to:
Historic centre, Shopping area, Touristic area.
Setting:
City.

Contact me about this property for rent

Private Seller
Please solve the captcha.